South Boston Library

Community Library.

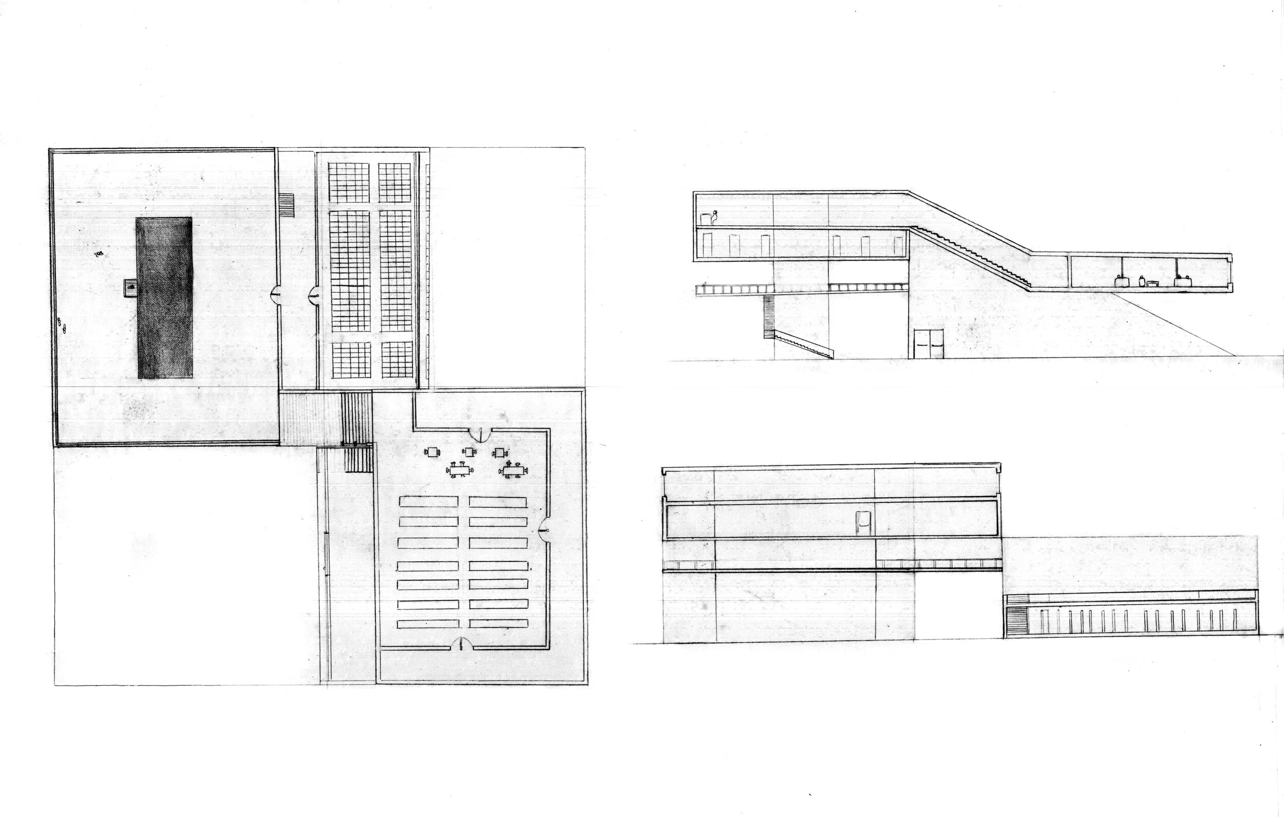
This library is housed at a very busy intersection in South Boston, which gave the design opportunity to house quiet programming on the interior. Both cantilevers allow for public outdoor programming such as book swaps and other community engagement initiatives.

Previous
Previous

Garden Of Self